A naturalized walkway to the Millennium Trail is considered “parkland” in a north Picton development. (County of Prince Edward Planning and Development graphic)
SARAH WILLIAMS
STAFF WRITER
While the world burns, red tape is getting in the way of green space in Prince Edward County. New residential development is in the works — but while Picton sprawls, parkland and other green spaces are becoming an endangered species.
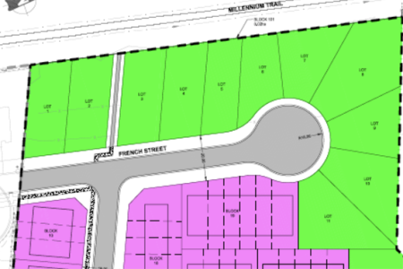
A new development application from the Cleave Group’s Port Picton Homes is just the most recent example. It proposes a 7.4-acre development west of Talbot Street, carved out of the West Meadows project and bounded by the Millenium Trail. It contains no parkland. The group is applying for a mixed-use residential development of 15 single detached and 43 town homes, with an “open space block” that gives access to the Trail.
Developers are able to pay “cash-in-lieu” for parkland deficiencies, that is, when there is not enough parkland in a development to meet provincial standards.
Also called “park monies,” cash-in-lieu means paying to avoid having to build a park. The money is collected by the municipality, and can only be used for purchasing new parkland. Any update to existing parks cannot be funded with this stream of money.
Cash-in-lieu applies to all subdivision applications above four units.
When asked by the Gazette how the lack of green space in new development fulfills the Provincial Policy Statement’s requirement for “healthy, active communities,” County spokesperson Mark Kerr provided some examples. In the Talbot street proposal, for example, “The applicant will convey an area of open space to create a pedestrian link to the Millennium Trail,” he said, referring to a narrow strip of land located between two of the proposed houses.
“The Millennium Trail is a key element of the parks, open space, and trails network and the premier active transportation route,” he continued. “Sidewalks will provide links to George Wright Boulevard and the parkland [in] West Meadows Phase 2. Any deficiencies in the final parkland calculation will be received by either cash-in-lieu or more land if suitable based on location and density surrounding the lands.”
Councillor Kate MacNaughton noted cash-in-lieu money is rarely used.
“For anything beyond four units, there is a certain fee structure. This can be cash-in-lieu or some parkland dedicated,” said MacNaughton. “When you’re developing small-to-large subdivisions, you must pay a couple thousand dollars strictly for consent to sever. We just started figuring out ways to use cash-in-lieu money because it’s specifically for purchasing property and creating new parks only.”
“We’re always trying to balance private rights of developers to develop their own land and public good,” said MacNaughton. “To strike a balance with every subdivision you’ve got to ask, ‘where will the benefit be?’”
That balance seems to many to be off. Way off. Over 40 mothers responded to the Gazette’s query about access to parks and green spaces, especially in new and existing developments. They complain about too few parks in new subdivisions and unsafe conditions in the existing ones. Concerns ranged from lack of parks to inaccessibility, whether due to finances — or disability.
Local mother Sara Kellar, who moved into the Cleave Group’s Curtis Street subdivision, was directed to Benson or Delhi Parks when she inquired about the nearest play area.
“I honestly was just curious about what the plans were, or if there even was a plan, or how to go about trying to get a new playground near us,” said Kellar.
Jen Peever said that she has to take her disabled daughter to a park in Belleville. There are very few accessible playgrounds in County parks.
“We have a park close by so we are lucky in that way but the lack of accessible parks is frustrating. My daughter can only use some parks in the County because, at many, there is just nothing for her to do there because of her disability,” said Ms. Peever.
“In Belleville there is a lovely, accessible park where stuff is on the ground or has a larger climbing surface. Also, the openings for crawling through are larger and easier to get through (they are wheelchair accessible even). I don’t think we even have an accessible swing except at the high school, but their play equipment isn’t really user friendly otherwise.”
Alicia Wright Williams noted her family has resorted to going to parks in Deseronto or Napanee due to the new fee structure at local conservation areas and parks, such as Sandbanks and Little Bluff.
“We’ve stopped using North Beach and Little Bluff as they’ve become too busy and expensive,”she said.
Ms. Williams, who has lived in the County for eight years with her family, said her experience has been a continued decline in the availability and accessibility of natural and recreational areas.
Still other parents noted they shuttle their children across the County to find a park with shade.
County spokesperson Mr. Kerr noted accessibility considerations for parks will be part of the Parks and Recreation Master Plan currently under development.
Premier Ford’s Bill 23, the More Homes Built Faster Act, will have deleterious effects on parkland in the county, according to a Park People, a non-profit that supports community groups in the fight for more parkland. Proposed changes to the policy framework will see diminishing parkland and with it, fewer sustainable and liveable communities, they note.
Among other changes, Bill 23 will allow land not typically considered parkland to count toward that requirement.
See it in the newspaper